Саратов, ул им Рахова В.Г., д 129
Пн-пт с 10:00 до 21:00, Сб-вс с 11:00 до 18:00

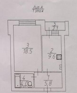
Продажа 1-к.квартира, 38 м², 1/10 эт. ID: J1696

Саратов, Кировский район, 9-10-11 мкр. Солнечный, улица им Академика Семенова Н.Н., д.11Б

Комнаты 1
Площадь 38 м²
Жилая 18.5 м²
Кухня 9.6 м²
Этаж 1 из 10
Сдача 2015 г.
3 900 000
102 631 /м²
Ипотека от ₽ 18 943 /месяц
Рассчитать ипотеку
Тарасова Ирина Юрьевна

Тарасова Ирина Юрьевна
Специалист по недвижимости

+7(917)329-2226

renome014@bk.ru
QR
Ссылка на объект

Описание

Продается просторная 1-к. кв. у парка «Семхоз». Всего 4 минуты до зоны отдыха!


🏠 Основные параметры и преимущества квартиры:


✔️ Год постройки дома: 2015


⚠️ Планировка и ее основные преимущества:


✔️ Изолированная комната 18.5 м²


✔️ Просторная кухня 9.6 м²


✔️ Большой санузел 4 м² — с легкостью вместит стиральную машину.


✔️ Вместительный коридор 5.8 м² — имеется возможность для обустройства полноценной гардеробной.


✔️ Застекленная лоджия 2,1 м²


✔️ Состояние: Квартира — никогда и никто в ней не проживал. Вы получаете объект в идеальном состоянии, готовый к воплощению любых идей.


👍 Преимущества расположения:


✔️ Развитая инфраструктура: В шаговой доступности вся необходимая инфраструктура: детские сады, школы, поликлиники, магазины.


✔️ Окна выходят во двор. Рядом — целых две отличные зоны для отдыха!


✔️ Квартира не угловая и не торцевая, что обеспечивает дополнительное тепло и комфорт в холодное время года.


🏞 Рядом с домом — лучшие места для отдыха


Расположение дома — это огромный плюс для тех, кто ценит прогулки на свежем воздухе и комфортную городскую среду.


✔️ Парк «Семхоз» — находится всего в 4 минутах ходьбы от дома. Это современная и благоустроенная зеленая зона с прудом, идеально подходящая для ежедневных прогулок, пробежек и отдыха на природе.


✔️ Сквер Героев Отечества — расположен всего в 10 минутах неспешной ходьбы. Это ухоженное и спокойное место, которое сочетает в себе функции зоны для отдыха и мемориального комплекса. В сквере установлены памятники и стелы, посвященные подвигам героев, а также есть прогулочные аллеи и детская игровая площадка. Это отличное место для неспешных прогулок с детьми и тихого отдыха.


💡 Кому подойдет эта квартира?


🎓 Студентам, ❤️ семьям и одиноким, 📈 инвесторам.


🔑 Юридическая чистота сделки


Собственник готов оперативно выйти на сделку. Квартира юридически чистая, долгов и обременений нет. Владелец — совершеннолетний гражданин, зарегистрировано только одно лицо.


Не упустите шанс стать владельцем просторной и удобной квартиры в одном из современных районов города!

Подробнее

Характеристики

  • Тип недвижимости Квартира
  • Населенный пункт Саратов
  • Район Кировский
  • Микрорайон 9-10-11 мкр. Солнечный
  • Адрес улица им Академика Семенова Н.Н., д.11Б
  • Количество комнат 1
  • Год постройки дома 2015 г.
  • Общая площадь 38 м²
  • Жилая площадь 18.5 м²
  • Площадь кухни 9.6 м²
  • Этаж 1
  • Этажей в доме 10
  • Тип санузла Совмещенный
  • Тип балкона лоджия
  • Состояние объекта хорошее
  • Наличие мебели нет
  • Вид из окон во двор
  • Тип дома кирпичный
  • Тип планировки Изолированная
  • Тип сделки Свободная

Задать вопрос


Расчет ипотеки



3 900 000




Газпромбанк - Жилые квартиры (базовая программа)

Процентная ставка

от 8.2%


Минимальный взнос: 20% ( 0 )


Ежемесячный платеж: 0


Сумма кредита: 0

График платежей

Открыть

Отправить заявку на ипотеку

Россельхозбанк - Жилые квартиры (базовая программа)

Процентная ставка

от 7.85%


Минимальный взнос: 15% ( 0 )


Ежемесячный платеж: 0


Сумма кредита: 0

График платежей

Открыть

Отправить заявку на ипотеку

Газпромбанк - Семейная ипотека (новостройки)

Процентная ставка

от 4.7%


Минимальный взнос: 15% ( 0 )


Ежемесячный платеж: 0


Сумма кредита: 0

График платежей

Открыть

Отправить заявку на ипотеку

Россельхозбанк - Сельская ипотека (дома за границей города)

Процентная ставка

от 2.7%


Минимальный взнос: 10% ( 0 )


Ежемесячный платеж: 0


Сумма кредита: 0

График платежей

Открыть

Отправить заявку на ипотеку

Россельхозбанк - Таунхаус

Процентная ставка

от 7.65%


Минимальный взнос: 15% ( 0 )


Ежемесячный платеж: 0


Сумма кредита: 0

График платежей

Открыть

Отправить заявку на ипотеку

Россельхозбанк - Индивидуальные дома (в черте города)

Процентная ставка

от 9%


Минимальный взнос: 25% ( 0 )


Ежемесячный платеж: 0


Сумма кредита: 0

График платежей

Открыть

Отправить заявку на ипотеку


Вас также может заинтересовать:

16
2-к.квартира, 44 м², 2/5 эт.
Саратов, улица Танкистов, д.65А
Кировский район, В границах Шехурдина - Тулайкова - Скорая помощь
3 260 000
  • Общая площадь:44 м²
  • Жилая площадь:28 м²
  • Площадь кухни:6 м²
  • Этаж:2
10
1-к.квартира, 32.2 м², 16/22 эт.
Саратов, проспект Героев Отечества, д.3А
Кировский район
4 350 000
  • Общая площадь:32.2 м²
  • Жилая площадь:14 м²
  • Площадь кухни:10 м²
  • Этаж:16
16
2-к.квартира, 42 м², 5/5 эт.
Саратов, улица Танкистов, д.68
Кировский район, В границах Шехурдина - Тулайкова - Скорая помощь
3 150 000
  • Общая площадь:42 м²
  • Площадь кухни:6 м²
  • Этаж:5
  • Тип санузла:Совмещенный

Мы используем файлы cookie, чтобы обеспечить вам наилучший доступ к нашему веб-сайту

Скопировано